Gruttostraat 14 7471 ES Goor Overijssel Hof van Twente Wijk 00 Goor De Whee I Nederland

Omschrijving

Op een prima locatie in de wijk “De Whee” gelegen goed onderhouden woning met vier slaapkamers, houten terrasoverkapping, aangebouwde veranda, recent aangelegde voortuin en voldoende parkeergelegenheid direct voor de woning.

De woning is gelegen in een kindvriendelijke omgeving nabij het centrum. De noodzakelijke voorzieningen zoals winkels en scholen bevinden zich in de directe nabijheid.

Indeling

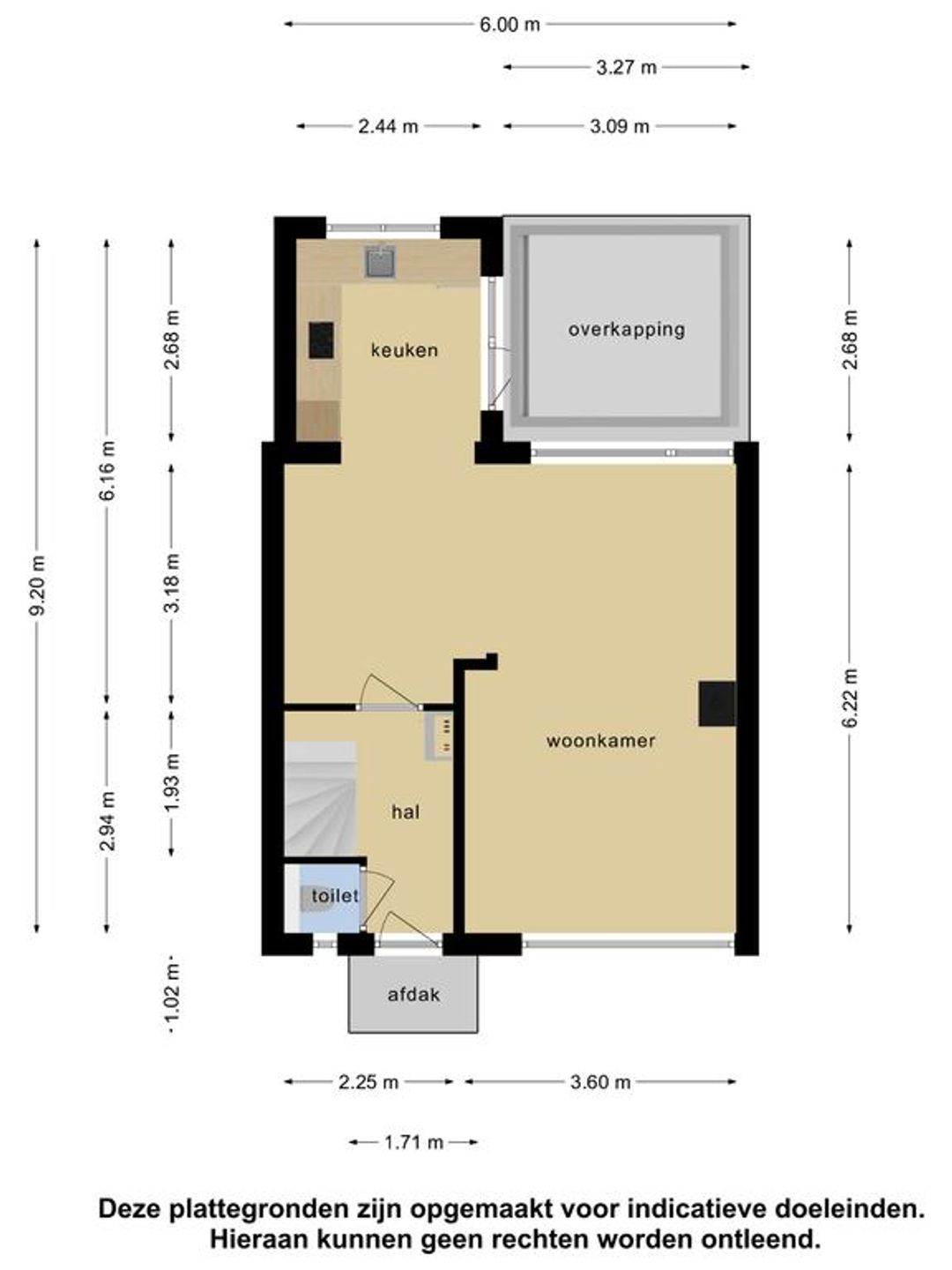
Begane grond:
Entree, hal met toilet en trapopgang naar de 1e etage. Sfeervolle en lichte woonkamer met houtkachel. De keuken bevindt zich in de aanbouw aan de achterzijde. Deze keuken is geplaats in een hoekopstelling en beschikt over diverse inbouwapparatuur. Tevens is hier de mogelijkheid voor het plaatsen van de wasmachine.

1e verdieping:
Overloop met toegang tot drie slaapkamers en de badkamer. De slaapkamers zijn prima van formaat en de grote slaapkamer beschikt over een airconditioning. Twee slaapkamer zijn v.v. kunststof kozijnen met rolluiken. De nette en moderne badkamer is v.v. een inloopdouche met regen- en handdouche en een wastafelmeubel met daarboven een spiegel met verwarming.

2e verdieping:
De zolderetage is bereikbaar middels een vaste trap. Hier is een ruime overloop met bergruimte en toegang tot de zolderkamer. Deze zolderkamer is prima geschikt als slaap-/ werkkamer. De dakkapel zorgt hier voor extra ruimte en een prettige lichtinval.

Tuin:
De tuin is goed van formaat en gesitueerd op het zuidoosten. Aan de achterzijde is een houten terrasoverkapping met berging en een eigen achterom. Ook bevindt zich aan de achterzijde van de woning nog een overdekte veranda.

Bijzonderheden:
– Sfeervolle woning met vier (slaap)kamers
– Tuin op het zuidoosten
– Terrasoverkapping en veranda
– Moderne badkamer
– Gedeeltelijk kunststof kozijnen
– Recent aangelegde voortuin
– Voldoende parkeerruimte direct voor de woning
– In de koopakte zal een 10% waarborgsom of bankgarantie worden opgenomen

Interesse in dit huis? Schakel uw eigen NVM-aankoopmakelaar in. Hij of zij komt op voor uw belangen als koper en bespaart u tijd, geld en zorgen.

Lees de volledige omschrijving

Kenmerken

Aangeboden sinds
6+ maanden
Status
Verkocht
Aanvaarding
In overleg
Soort woonhuis
Eengezinswoning, tussenwoning
Soort bouw
Bestaande bouw
Bouwjaar
1961
Soort dak
Pannen
Ligging
Aan rustige weg, in woonwijk

Oppervlakten en inhoud

Wonen
98 m²
Gebouwgebonden Buitenruimte
12 m²
Externe bergruimte
2 m²
Perceel
176 m²
Inhoud
340 m³

Indeling

Aantal kamers
5 kamers (4 slaapkamers)
Aantal badkamers
1 badkamer
Badkamervoorzieningen
Inloopdouche, wastafelmeubel
Aantal woonlagen
3
Voorzieningen
Airconditioning, buitenzonwering, natuurlijke ventilatie, rolluiken, rookkanaal

Energie

Energielabel
E
Isolatie
Dakisolatie, grotendeels dubbelglas
Verwarming
Cv ketel, houtkachel
Warm water
Cv ketel
Cv-ketel
Remeha Quinta (gas gestookt combiketel uit 2007, lease)

Kadastrale gegevens

Perceelnaam
Goor C 3839
Oppervlakte
176 m²
Eigendomssituatie
Volle eigendom
Perceel
319-C-3839

Buitenruimte

Tuin
Achtertuin, voortuin
Achtertuin
60 m²
Ligging tuin
Zuidoost bereikbaar via achterom

Schuur/berging
Vrijstaand hout

Parkeergelegenheid

Soort parkeergelegenheid
Openbaar parkeren
Bekijk alle kenmerken

Overige media