Lipperkerkstraat 127 7511 CW Enschede Overijssel Enschede Wijk 00 Binnensingelgebied De Bothoven Nederland

Omschrijving

Op een prima locatie binnen de singel gelegen middenwoning met drie slaapkamers en een riante garage aan de achterzijde.

Deze woning is in 1957 herbouwd op de fundamenten van de oude woning. Vervolgens werd rond 2010 de buitenzijde vanuit een stadsrenovatie bijna volledig vernieuwd. Daarbij is de woning v.v. kunststof kozijnen, is het dak vervangen en is er een nieuwe gevel aangebracht met isolatie. Dit alles heeft onder andere geresulteerd in een energielabel B.

Aan de binnenzijde heeft de koper diverse opties om de woning naar eigen inzicht in te richten en af te werken. Enige modernisering kan de woning wel gebruiken, maar dat biedt tevens de mogelijkheid om dit naar eigen wens te doen.
De centrale ligging net binnen de singel is ideaal en parkeren is gratis. Het centrum ligt op korte afstand, winkelvoorzieningen bevinden zich in de directe nabijheid en de uitvalswegen zijn eenvoudig bereikbaar.

Begane grond:
Hal met meterkast, trapopgang en toegang tot de woonkamer. Gezellige woonkamer met toegang naar de dichte keuken. De woonkamer en keuken zijn naar wens samen te voegen waardoor er een meer open ruimte ontstaat. Vanuit de keuken is de kelder toegankelijk en de gang in de uitbouw aan de achterzijde. Hier bevinden zich de badkamer met douche en wastafel, een separaat toilet, de praktische bijkeuken met opstelplaats voor wasmachine en droger en tot slot een berging.

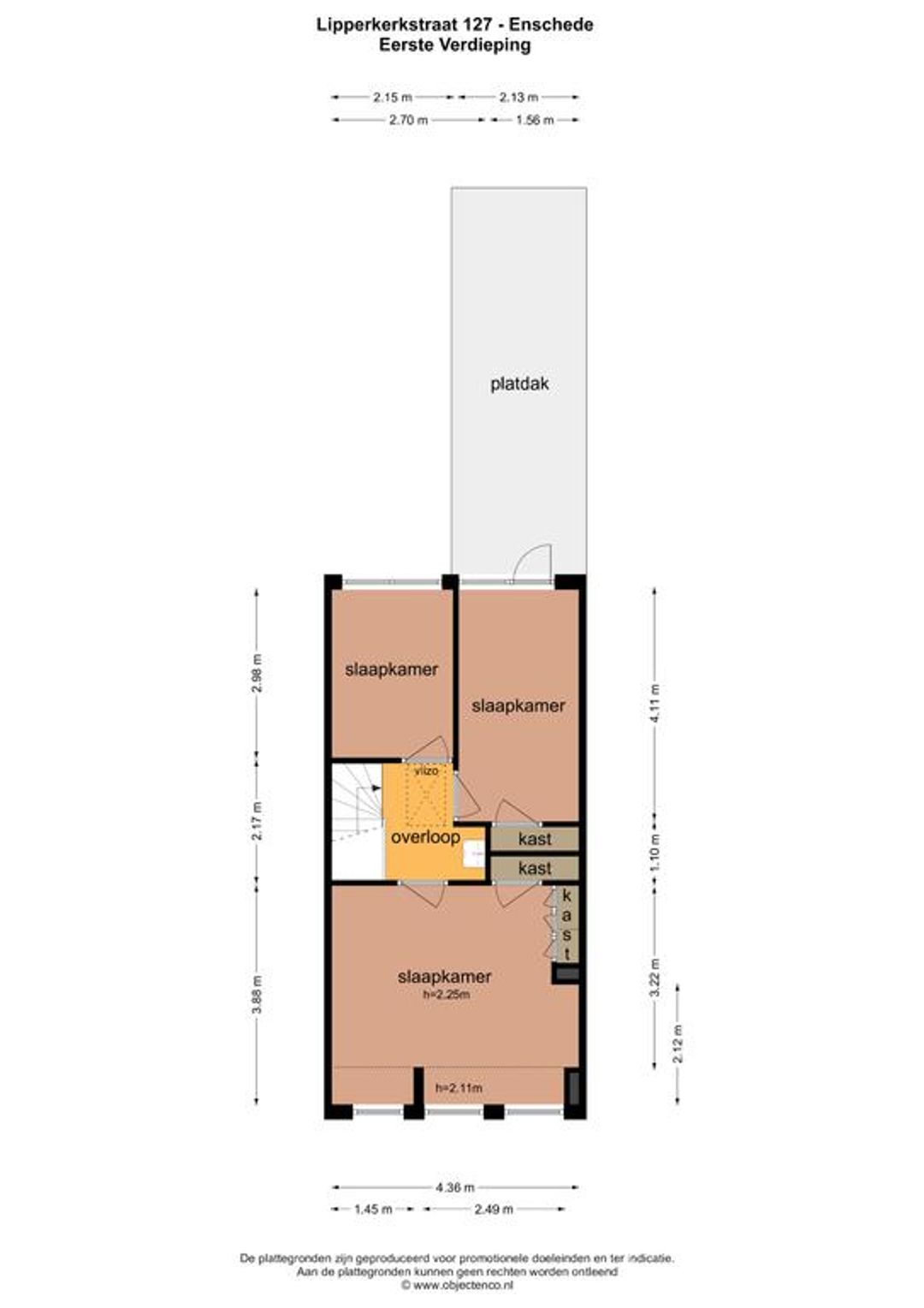
1e verdieping:
Op deze verdieping bevinden zich drie slaapkamers. De grote slaapkamer aan de voorzijde is over de volle breedte van de woning. Deze kamer is extra ruim doordat het voormalige balkon bij deze kamer is aangetrokken. Twee kamers beschikken over een inbouwkast. Op de overloop bevindt zich nog een wastafel.

2e verdieping:
Ruime bergzolder, die vanaf de overloop door middel van een vlizotrap te bereiken is. Ideaal voor het opslaan van zaken die niet onder handbereik hoeven te worden opgeslagen.

Tuin:
Aan de achterzijde ligt een prima stadstuin met voldoende ruimte voor het tuinmeubilair. Vanuit de tuin is er toegang tot de garage. Deze garage heeft een breedte van maar liefst 4.5 meter en is v.v. een elektrisch te bedienen garagedeur. Een ideale ruimte voor hobby of berging. Maar natuurlijk ook gewoon om de auto te stallen.

Bijzonderheden
– Op een prima locatie binnen de singel gelegen
– Ruime garage van ca. 4.5 meter breed aan de achterzijde
– Gratis parkeren voor de deur en natuurlijk op eigen grond (in de garage).
– Centrum en winkelvoorzieningen op korte afstand
– Drie slaapkamers op de 1e etage
– Buitenzijde gerenoveerd rond 2010
– Voorzien van kunststof kozijnwerk met HR++ glas.
– Energielabel B

Lees de volledige omschrijving

Kenmerken

Aangeboden sinds
6+ maanden
Status
Verkocht
Aanvaarding
In overleg
Soort woonhuis
Eengezinswoning, tussenwoning
Soort bouw
Bestaande bouw
Bouwjaar
1954
Soort dak
Pannen
Ligging
Aan rustige weg, in woonwijk

Oppervlakten en inhoud

Wonen
94 m²
Externe bergruimte
23 m²
Perceel
121 m²
Inhoud
374 m³

Indeling

Aantal kamers
5 kamers ( slaapkamers)
Aantal badkamers
1 badkamer
Badkamervoorzieningen
Douche, wastafel
Aantal woonlagen
3

Energie

Energielabel
B
Isolatie
Dakisolatie, dubbel glas, muurisolatie
Verwarming
Cv ketel
Warm water
Cv ketel

Kadastrale gegevens

Perceelnaam
Enschede D 11220
Oppervlakte
96 m²
Eigendomssituatie
Volle eigendom
Perceel
275-D-11220
Perceelnaam
Enschede D 13693
Oppervlakte
25 m²
Eigendomssituatie
Volle eigendom
Perceel
ESD00-D-13693

Buitenruimte

Tuin
Achtertuin
Achtertuin
45 m²
Ligging tuin
Noordwest bereikbaar via achterom

Garage

Capaciteit
1 auto
Voorzieningen
Elektra

Parkeergelegenheid

Soort parkeergelegenheid
Openbaar parkeren
Bekijk alle kenmerken

Overige media